


Le bar du Théâtre du Manège est un espace visuellement connu du public. Il se transforme durant l'installation en un instrument à l'échelle d'une salle. Instrument dont les règles sont à découvrir et apprendre « à l'oreille», par l'écoute de son déplacement dans l'espace. Les pistes sont brouillées par les autres participants et la spatialisation des évènements : qui produit quoi ?
Une musique d'ensemble qui ne se comprend qu'en solo… A vous d'en jouer
Le propos : d'où part-on, pour aller où ?
Rendre musical un espace public, et le re-découvrir avec cette nouvelle fonctionnalité.
Le système de captation reste invisible pour les participants, car conserver une véritable « magie » du comportement musical fait partie intégrante du mode de jeu à découvrir.
Un espace « vide » devient sensible, un « sixième sens » à appréhender par l'écoute et le geste, un labyrinthe sonore dont on ne sort heureux qu'après en avoir joué et compris quelques possibles.
Comment ça marche ? Petite recette cinématographique.
Les acteurs : prenez un bar de théâtre, son barman, et le public qui sort se restaurer à la fin d'une représentation.
La captation: une petite caméra, discrète, qui filme le tout : un espace fixe englobant l'ensemble du bar et quelques tables.
Le traitement de l'image filmée: elle est analysée dans ses moindres détails, pour que tout changement soit pris en compte, jusqu'à l'échelle d'un pixel (unité la plus petite pour construire une image vidéo). On peut ainsi détecter tout mouvement ou une densité de perturbation dans une région choisie de l'image filmée.
Le compositeur choisit :
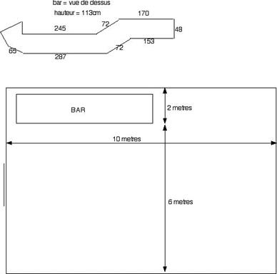
Pour Public Space 1 , l'espace est découpé en trois zones indépendantes : le bar, tables à sa gauche, tables et espace de déambulation à sa droite. Chacun de ces espaces fonctionne en stéréo, est indépendant dans son pilotage, ce qui donne un contrepoint à trois voix s'il existe une activité simultanée dans ces trois lieux.
Chaque espace se définit par la musique qu'il émet, qui elle-même évolue dans le temps, peut se retrouver dans un autre espace plus tard…etc
Autant de possibles qui font que même si l'on découvre la manière de piloter la musique, elle ne sera pas pour autant toujours la même… vers une écoute et une découverte constante.
SHEMA DU DISPOSITIF DE CAPTATION ET DIFFUSION DE « PUBLIC SPACE 1 »